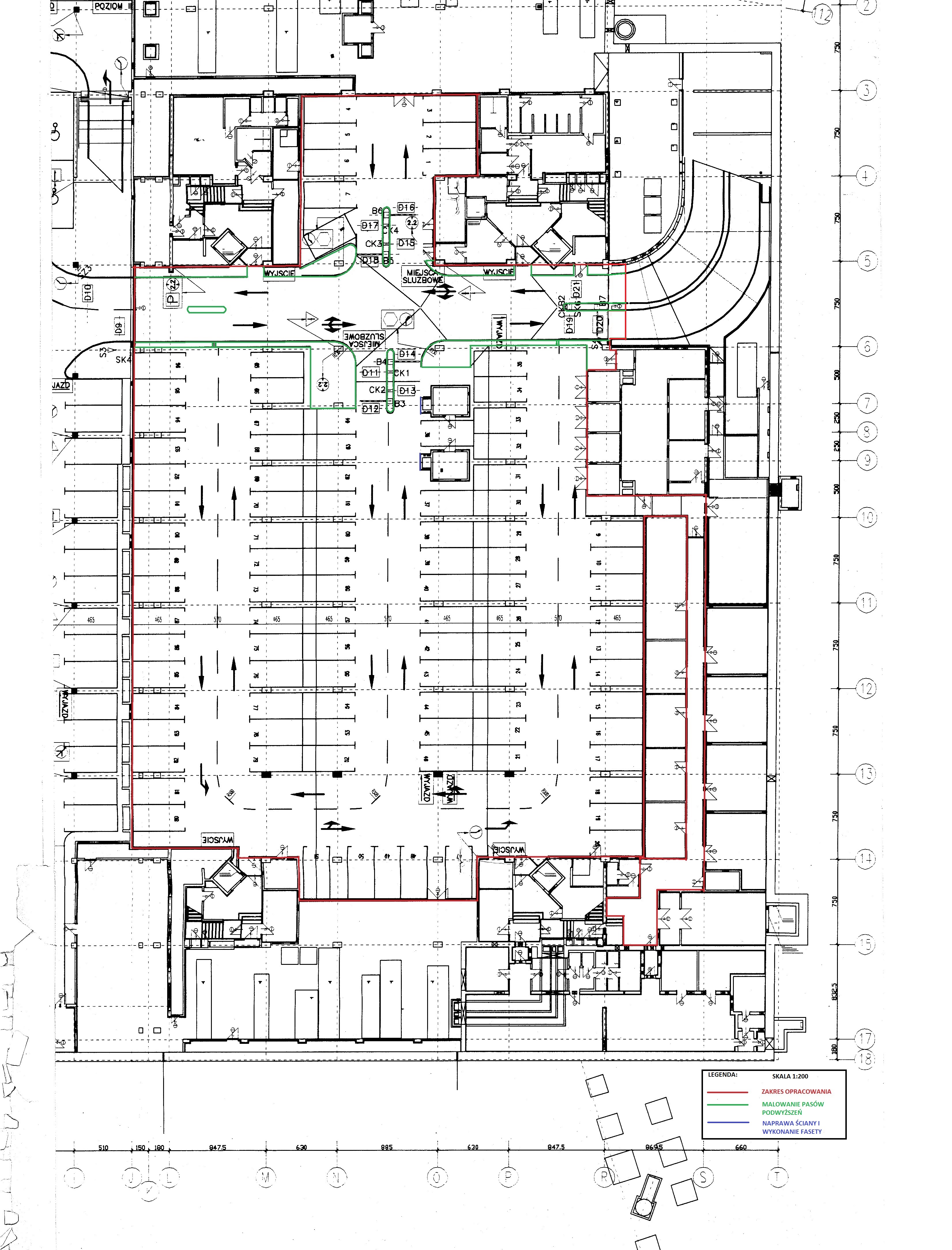
Sąd NajwyższyInformacje praktyczneZamówienia publiczne Wydrukuj stronę Zamowienia_publiczne Zamówienia publiczne Przejdź do szczegółów elementu Kryteria filtrowania Rok: 2016 zmień na inny rok Tytuł ogłoszenia: Postępowanie w trybie przetargu nieograniczonego na remont posadz... zmień na inne zamówienie publiczne Zamówienie Biura Administracyjnego z dnia 16 września 2016 r. Postępowanie w trybie przetargu nieograniczonego na remont posadzek parkingu podziemnego w Kompleksie Urbanistycznym Wymiaru Sprawiedliwości Pobierz plik Ogłoszenie o zamówieniu.pdf Ogłoszenie o zamówieniu.pdf Pobierz plik SIWZ.pdf SIWZ.pdf Pobierz plik Załącznik 1A - Szczegółowy opis przedmiotu zamówienia.pdf Załącznik 1A - Szczegółowy opis przedmiotu zamówienia.pdf Pobierz plik Załącznik 1B - Przedmiar robót.pdf Załącznik 1B - Przedmiar robót.pdf Pobierz plik Załącznik 1C - STWiORB.pdf Załącznik 1C - STWiORB.pdf Pobierz plik Załącznik 1D - Rysunek rzutu parkingu podziemnego.jpg Załącznik 1D - Rysunek rzutu parkingu podziemnego.jpg Pobierz plik Załącznik 1D - Rysunek rzutu parkingu podziemnego.pdf Załącznik 1D - Rysunek rzutu parkingu podziemnego.pdf Pobierz plik Załącznik nr 2 - Formularz ofertowy.doc Załącznik nr 2 - Formularz ofertowy.doc Pobierz plik Załącznik nr 2 - Formularz ofertowy.pdf Załącznik nr 2 - Formularz ofertowy.pdf Pobierz plik Załącznik nr 3 - Oświadczenie wykonawcy.docx Załącznik nr 3 - Oświadczenie wykonawcy.docx Pobierz plik Załącznik nr 3 - Oświadczenie wykonawcy.pdf Załącznik nr 3 - Oświadczenie wykonawcy.pdf Pobierz plik Załącznik nr 4 - Istotne postanowienia umowy.pdf Załącznik nr 4 - Istotne postanowienia umowy.pdf